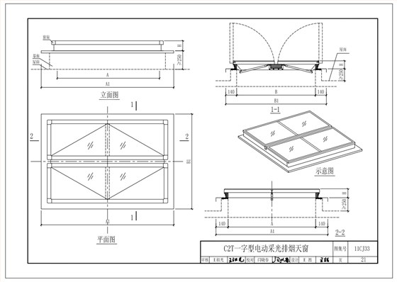
在新建工業廠房中應用廣泛的一字形電動采光排煙天窗,其結構穩固性至關重要,直接關系到使用安全與壽命。要確保天窗結構穩固,需從多方面著手。
	 
聯結點設計是關鍵。在面臨當地風荷載與雪荷載時,天窗構件聯結點需具備足夠的強度與韌性,請結合項目當地氣候條件進行合理設計。合理設計聯結點的數量、位置及連接方式,能夠有效分散荷載,避免應力集中。在強風地區,經過精心設計的聯結點能防止一字形電動采光排煙天窗被強風掀翻;在多雪地區,也能承受積雪重壓而不發生變形或損壞。
材料配置同樣不容忽視。為滿足耐候性能要求,需選用合適的材料。鋼結構電動排煙天窗框架可采用耐腐蝕性強的鋁合金材質,其不僅質量輕,還能在長期的日曬雨淋、溫度變化中保持穩定,不易生銹、變形。采光面板則可選用高強度、耐老化的PC中空陽光板或FRP采光板,既能保證良好的采光效果,又能抵御紫外線侵蝕與惡劣天氣影響,延長天窗使用壽命。
	 
安裝過程中的聯結點牢固程度直接決定了天窗的整體穩定性。安裝人員必須嚴格按照規范操作,確保每個聯結點都安裝牢固。安裝后,要進行全面的檢查與測試。
只有確保聯結點、材料配置的牢固可靠,才能讓一字形電動采光排煙天窗在關鍵時刻發揮應有的作用,為建筑提供安全保障。
	

 MCW5型通風天窗(暗扣式)
MCW5型通風天窗(暗扣式) MCW7型通風天窗(箱型骨架式)
MCW7型通風天窗(箱型骨架式) C1XT三角形電動采光排煙天窗(下開式)
C1XT三角形電動采光排煙天窗(下開式) TC5型流線型通風天窗
TC5型流線型通風天窗